Equipos de Rádio en los U-boote

Radio Comunicaciones

Las comunicaciones de radio eran absolutamente esenciales en el concepto de mando y control para Dönitz, pero habían cuatro inconvenientes:

  • Las limitaciones técnicas hacían que los submarinos tenían que estar muy cerca o en la superficie para recibir y transmitir mensajes
  • Muchas de las transmisiones generadas entre los submarinos y sus bases estaban codificadas con la máquina enigma, código que los Británicos fueron capaces de descifrar la mayor parte de la guerra consiguiendo por lo tanto gran cantidad de información.
  • Los submarinos transmitían muchos mensajes lo que permitía a los aliados localizar su posición usando el método de triangulación mediante antenas directivas (DF).
  • Los aliados usaban un método llamado “análisis de tráfico” para examinar los patrones utilizados en las transmisiones y de esta manera avanzarse al enemigo.

La utilización de las transmisiones de radio fue definida por Dönitz en el libro “U-boat Commander’s Handbook”.

Había que mandar importantes mensajes como:

  1. Los contactos con naves enemigas para poder guiar a otros Submarinos al combate
  2. Alertas referidas a la posición de submarinos enemigos o campos de minas
  3. Informes sobre la patrulla, situación, rumbo, ataques y uso de las armas.
  4. Informes meteorológicos.
  5. Posición e informes sobre movimientos de naves enemigas, estos mensajes eran usados por los cuarteles generales para preparar las operaciones.
  6. Informes requeridos por el cuartel general (Bdu).
Todas estas transmisiones generaban un gran tráfico radiado, pero a parte existían otras transmisiones como por ejemplo las generadas para concertar una cita en alta mar con una vaca lechera, con otro submarino o un barco de abastecimiento.
Operadores de Radio del U 552

Los dos bandos sabían bien que sus transmisiones podían ser interceptadas pero los altos mandos de la Kriegsmarine estaban convencidos que sus códigos y especialmente la máquina enigma eran absolutamente indescifrables.
También sabían que los aliados tenían radio estaciones en tierra firme equipadas antenas directivas capaces de localizar a sus submarinos (DF). Pero lo que no sabían es que hacía al final de la guerra estos sistemas (DF) eran montados en los buques escolta lo que permitía determinar el origen de una transmisión en menos de 20 segundos.

Ordenes posteriores recomendaban a los comandantes usar la radio solo cuando fuera necesario, estas ordenes crearon cierto desconcierto en el Bdu ya que no sabían si un submarino en particular estaba siguiendo las ordenes a rajatabla o no transmitía por que lo habían hundido.

A partir de 1944 la fuerza submarina experimenta importantes problemas en sus comunicaciones. Los aliados avanzaban por Francia y Alemania y muchas estaciones de radio fueron destruidas. En los U-Boote los operadores de radio estaban cada vez peor entrenados y no tenían tanta experiencia en comparación al inicio de la guerra, a todo esto se unía al temor que tenían los comandantes a ser localizados si usaban la radio. A causa de esto un 50% de los submarinos no transmitía ningún mensaje en toda la patrulla, excepto a lo mejor para solicitar una escolta de superficie al llegar a las bases Noruegas, incluso algunos no lo hacían.

Esto tuvo dos consecuencias, la primera era que al inicio de la guerra si un submarino no se ponía en contacto con su base durante dos semanas era considerado perdido, pero a partir de finales del 1944 se contaban estas dos semanas a partir de la fecha prevista de la finalización de la patrulla. La segunda consecuencia era que el Bdu recibía poca o ninguna información sobre su posición en el mar y cuando volvían de patrulla e informaban en persona al Bdu la información recibida estaba ya anticuada.

Todo el tráfico radiado era transmitido en código morse a una velocidad aproximada de 24 palabras por minuto. Una manera de acortar las transmisiones era usar códigos sacados de dos libros de señales (Kurzsignalheft), uno para avistamientos de convoyes y otro para los partes meteorológicos. Ambos libros permitían al operador sustituir palabras o grupos de letras por frases predeterminadas, que eran codificadas usando la máquina enigma y eran identificadas por un prefijo formado por la letra griega Beta y un guión.

Al final de la guerra un nuevo aparato el KZG 44/2 “Kurier” (courier) fue desarrollado para usarse junto con un transmisor para mandar series de letras en código morse muy rápidamente (unas siete letras en 0.4 segundos), estas “frases” eran mandadas cambiando continuamente la frecuencia de transmisión. Esto hacía muy difícil, pero no imposible, su interceptación y la localización del origen de la señal. Kurier fue probado en el mar Báltico por él U-878 (Rodig) a mediados del 1944, a estas pruebas siguieron otras llevadas a cabo por 6 submarinos en aguas noruegas, los problemas fueron solucionados y Kurier entro en producción, estaba instalado al final de la guerra en unos 20 submarinos.

El equipo receptor estaba mucho más elaborado, consistía en tres receptores Philips CR-101 y un aparato que visualizaba el mensaje recibido en una película, de donde era leído por el operador. A causa de su aparatosidad el equipo receptor no se podía instalar en un submarino, esto quería decir que kurier sería utilizado solamente para las comunicaciones entre Submarinos y el Bdu, no entre submarinos.


Transmisores y Receptores

La instalación variaba según el tipo de U-boot pero todas las instalaciones abarcaban las 3 bandas, la de muy baja frecuencia (VLF) la de media frecuencia (MF) y la alta frecuencia (HF).

Muchos de estos equipos eran fabricados por empresas alemanas como Telefunken, Lorenz, Radione y por Rohde & Schwarz, pero a veces también había equipos fabricados en Francia o Holanda.

Las comunicaciones a larga distancia entre el BdU y los U-Boote de patrulla eran vía mensajes radiotelegrafiados usando código Morse y emitidos por la banda de alta frecuencia (HF) que era conocida por los alemanes como kurzwelle (banda corta).

Dentro del submarino el equipo estaba colocado en la sala de radio (funkraum) y normalmente consistía de un transmisor principal y uno o varios transmisores de reserva de menor potencia. También disponían de varios receptores. Los mensajes hacía los submarinos se emitían desde estaciones de radio de alta potencia situados en Francia y Alemania, con el destinatario en lenguaje claro (descodificado) y el texto normalmente codificado. Los submarinos sumergidos podían estar incomunicados durante largo tiempo, por eso los mensajes se repetían con frecuencia hasta que eran recibidos.

La frecuencia Media (100khz ~ 1.5Mhz) era usada para comunicaciones entre U-Boote en el mar para por ejemplo preparar un encuentro en superficie. La sala de radio incluía un trasmisor de Onda larga y un receptor multibanda, que también servia como equipo de reserva del Receptor de Alta frecuencia. A parte de escuchar las transmisiones alemanas los operadores de radio también monitorizaban las señales internacionales de 600m y de 36m que eran usadas por los mercantes aliados en peligro.


Configuración Típica en un U-boot
Función
Tipo
Frecuencia
Potencia
Uso principal
Uso Alternativo
Transmisores
Telefunken S-400-S
3-30Mhz
200w
U-boats a Base
Equipo Principal
Lorenz 40-K-39a
3-30Mhz
40w
U-boats a Base
Equipo Reserva
Telefunken T-200 FKW 39
3-24Mhz
200w
U-boats a Base

Lorenz Lo 40 k 39a
5-16.7Mhz
40w

Telefunken
600-800m
150w

Telefunken Spez-2113-S
100Khz-1.5Mhz
150w
Vigilancia
U-boat a U-Boat
Receptores
Telefunken E-437-S
3-30Mhz
Base a U-Boote
Receptor Principal
Telefunken E-381-S
15Khz-20Mhz
1- Receptor Reserva
2- Usado como receptor de VLF
Telefunken Ela-10.12
100Khz-1.5Mhz
Vigilancia
1- Transmisiones entre barcos enemigos
2- Transmisiones Comerciales Enemigas
3- Usado con la antena direccional (loop antena DF)
Radione R.1 óR.2
Equipo Reserva del Telefunken Ela-10.12
1- Amplificador del Gramófono
2- Oir Boletines Enemigos
3- Usado con la antena direccional (loop antena DF)

Antenas

Al inicio de la contienda, el cable que iba del puente hacia la proa era usado como antena transmisora y uno de los cables que iban hacia la popa era usado como receptor. Para mejorar las comunicaciones y para reducir las posibilidades de interceptación por parte de los aliados a la hora de transmitir se encaraba el submarino hacía las distantes estaciones terrestres, aunque los capitanes a veces no eran partidarios de variar el rumbo para satisfacer a los operadores de radio. Mas adelante una antena telescópica omnidirecional instalada en el puente fue idónea para no tener que variar el rumbo.

A veces cuando por diferentes causas era imposible captar un mensaje, se usaba un globo (Aphrodite) para elevar un cable y usarlo como antena.

Todos los submarinos tenían instalada en el puente una Funkpeilrahmen, una antena directiva (DF) Esta antena de forma circular podía rotar a través de un mecanismo controlado desde la sala de radio. Era usada para recibir mensajes desde la base o desde otros submarinos y cuando fuera necesario establecer la posición aproximada del origen de la transmisión aunque no fue diseñada para estos propósitos como los sistemas DF aliados.
El profesor Küpfmüller insistió en que los U-Boote debían tener un buen sistema DF y diseño dos nuevos modelos. El primero, llamado Presskohle era un aparato que montado en un receptor estándar de los montados en los submarinos permitía tomar marcaciones en las señales captadas entre la banda de 1.5 y 3.0Mhz dentro de la banda de Alta Frecuencia (HF), el 20% de los submarinos tenían montado este sistema al finalizar la contienda.
El otro sistema fue diseñado para los submarinos del tipo XXI y consistía en dos antenas DF montadas dentro del snorkel que estaba cubierta por una capa de material anti-radar pero inmune a las señales de Alta Frecuencia. Como mucho de los avances alemanes no entro en producción hasta el final de la guerra.


Comparación entre Las Frecuencias de Radio Alemanas y Aliadas en la WW2
Sistemas Alemanes
Sistemas Aliados
Nombre Alemán
Banda de Frecuencia
Nombre Aliado
Banda de Frecuencia
Längstwelle
Menos de 100 Khz
Very Low frequency (VLF)
3Khz - 30Khz
Langwellen
100Khz - 1.5Mhz
Low Frequency (LF)
30Khz - 300Khz
Grenzwelle
1.5Mhz - 3Mhz
Medium Frequency (MF)
300Khz - 3Mhz
Kurzwelle
UltraKürzwelle
3Mhz - 30Mhz
Más de 30Mhz
High Frequency (HF)
Very High Frequency (VHF)
3Mhz - 30Mhz
Más de 30Mhz
Längstwelle: Onda más larga
Langwellen: Onda larga
Grenzwelle: Onda Internacional
Kurzwelle
: Onda Corta
UltraKürzwelle
: Onda más corta
Very Low frequency: Muy Baja Frecuencia
Low Frequency: Baja Frecuencia
Medium Frequency: Frecuencia Media
High Frequency: Alta Frecuencia
Very High Frequency: Muy Alta Frecuencia

Seguridad

La sala de radio contenía gran variedad de documentos secretos incluidos las claves para el ajuste de la máquina enigma, manuales, instrucciones, libros de claves y registros de mensajes, entonces el acceso a la sala de radio era restringido a los operadores y a unos pocos miembros de la tripulación.

Existían ordenes muy estrictas en caso de emergencia (por ejemplo al abandonar la nave) para que todos los documentos secretos y la máquina enigma fueran destruidos, incluso tirarlos por la borda o ponerlos dentro de una bolsa y lanzarlos con un torpedo. A parte algunos documentos como las claves de la máquina enigma eran impresos con tinta soluble para su rápida destrucción.

Operador de Radio del U 123

Dotación de Radio Operadores según el tipo de Submarino

Puesto
Oberfunkmeister
(Oficial de Radio)
Funkmaat
(SubOficial de Radio)
Funker (Funkgast)
(Radio Operador)
Rangos
Stabsoberfunkmeister
Oberfunkmeister
Stabsfunkmeister
Funkmeister
Oberfunkmaat
Funkmaat
Funkhauptgefreiter
Funkobergfreiter
Funkgefreiter
Ia
-
2
2
II A/B/C/D
-
1
1 - 2
VIIa
-
2
2
VIIb
-
2
2
VIIc
(1939 - ~1943)
-
2
2
VIIc
(~1944 - 1945)
-
2
3 - 4
VIId
-
2
2
IXc
(1939 - ~1943)
-
2
2
IXc
(~ 1943 - 1944)
-
2
3
IX/IXc
(~ 1944 - 1945)
1
1
2 - 3
IXd
(1940 - ~ 1943)
-
2
3
IXd
(~ 1943 - 1945)
1
1
2 - 3
XIV
1
1
2 - 3
XXI
Normalmente
-
1
2
1
4
4
XXIII
-
1
1

El Transmisor Goliat
Muchas de las radioestaciones terrestres usaban medias y altas frecuencias para comunicarse con los U-Boote, pero un inusual sistema empezo a funcionar la primavera del 1943. Los submarinos podían recibir señales de muy baja frecuencia estando sumergidos a una profundidad máxima de 15 metros, aunque debían estar en superficie para recibir las transmisiones efectuadas en la gama de medias y altas frecuencias. Se descubrió que aunque las transmisiones efectuadas a muy baja frecuenia (VLF) podían ser recibidas a una profundidad de unos 26 metros en el Atlántico Norte esta profundidad se reducía en otros lugares como el Atlantico Sur o el Oceano Indico.
La Kriegsmarine tenía su transmisor VLF en Nauen cerca de Berlín, pero este no podía funcionar con la potencia necesaria, por eso se construyó Goliath que fue diseñado y construido por la casa Lorenz.

Goliath estaba ubicado en el termino municipal de Kalbe a/m Milde (Kalbe sobre el río Milde, para distinguirlo de otro Kalbe, Kalbe an der Saale en Sajonia). Concretamente se ubica el campo de antenas al noreste de la población de Kalbe, que se encuentra a unos 30 km al oeste de Stendal. Goliath tenía una potencia de salida nominal operativa de 800 Kw, aunque podía alcanzar los 1000 Kw si era necesario. Su señal podía ser recibida por submarinos sumergidos entre 8-12 mts a contar desde lo alto de la vela hasta la superficie, desde lugares tan lejanos como Cape Town en Sudafrica o los estrechos de Malaca (penang).
El transmisor alimentaba un complejo de antenas que consistían en tres hexágonos, cada uno de esos hexágonos tenía una antena central de 204 metros de altura, rodado por seis torres de 171 metros cada una. Los hexágonos estaban dispuestos en una configuración triangular, con dos de ellos en el lado norte del complejo y el otro, entre los dos superiores, más hacia el sur. Este último hexágono estaba atravesado de este a oeste por el rio Milde. La distancia entre los mástiles centrales de los hexágonos era de 800 mts.
(×)

Comunicaciones entre U-boote
Las comunicaciones entre submarinos en alta mar eran mínimas, pero era necesaria una comunicación satisfactoria via radio cuando los submarinos no estaban al alcance de la vista, que era cuando se usaban las banderas tradicionales de comunicaciones. Todos los U-Boote estaban equipados con un telegrafo submarino “Unterwasse-Telegraphie” (UT), que estaba diseñado para usarse entre dos submarinos sumergidos.
Este equipo lo componían dos pares de hidrófonos (uno para transmitir otroo para recibir) colocados a cada lado de la proa y operaban a una frecuencia de 3.5Khz, pero el alcance era relativamente corto y dependian mucho de las condiciones climáticas. Este sistema era usado raramente dada la facilidad de ser captada por el sonar enemigo.

Alfabeto militar alemán y otros códigos

Letra Sonido fonético usado en los UB Código internacional Código Morse
A Anton Alfa ● ▬
B Bruno Bravo ▬ ●●●
C Cäsar (César) Charlie ▬ ● ▬ ●
D Dora Delta ▬ ● ●
E Emil Echo
F Fritz Foxtrot ● ● ▬ ●
G Gustav Golf ▬ ▬ ●
H Hans Hotel ● ● ● ●
I Ida India ●●
J Julius Juliet ● ▬ ▬ ▬
K Karl Kilo ▬ ● ▬
L Lucie Lima ● ▬ ● ●
M Max Mike ▬ ▬
N Nanni November ▬ ●
Ñ --- Ñoño ▬ ▬ ● ▬ ▬
O Otto Oscar ▬ ▬ ▬
P Paul Papa ● ▬ ▬ ●
Q Quatsch Quebec ▬ ▬ ● ▬
R Richard Romeo ● ▬ ●
S Sofie Sierra ●●●
T Toni Tango
U Ulli Uniform ● ● ▬
V Viktor Victor ● ● ● ▬
W Willi Whisky ● ▬ ▬
X Ix X-ray ▬ ● ● ▬
Y Ysop Yankee ▬ ● ▬ ▬
Z Zet Zulú ▬ ▬ ● ●

Nota:
En el código Morse [•] significa punto y [-] raya

 

Disposición Sala de Radio de un tipo VIIc
Disposición Sala de Radio de un tipo IXc
Clicka para ampliar
Clicka para ampliar
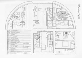
Disposición Sala de Radio de un tipo XXI
Disposición Sala de Radio de un tipo XXIII
Clicka para ampliar
Clicka para ampliar

(×) Cuando los rusos llegaron a Kalbe, (La población de Kalbe a/m Milde se encuentra en 52°39'16.61"N 11°23'31.32"E) desmantelaron en 1946 el complejo, cargaron las gigantescas torres y los km de cables de acero (los alemanes no pudieron utilizar cobre debido a la escasez de este metal durante la guerra) y se los llevaron a Rusia, donde volvieron a instalarlo cerca de Nizhny Novgorod. Las fértiles tierras del complejo Goliath fueron "socializadas" por el gobierno democrático aleman y reconvertidas en campos de labranza.

Bibliografia:
U-boats de David Miller, Colección Vom Original zum Modell (Köhl, Niestlé, Rössler)
Otras Fuentes: uboat.net
, Jordi López

Artículo realizado por Dani J.Åkerberg para U-historia


Atrás
Nota Legal y Copyright ©
Inicio
Contacto